Ligne Basic Bungalow Toilettes Dames/Hommes

10/001

Conteneur sanitaire

Dames / Hommes WC Urinoir Évier Lumière Chauffage Transport Tension Eau
  • 5 toilettes
  • 2 urinoirs
  • 2 lavabos
Description du produit
Nos services
  • Nous consultons
  • Nous livrons
  • Nous nettoyons
  • Nous disposons
  • Nous recueillons

Description du produit

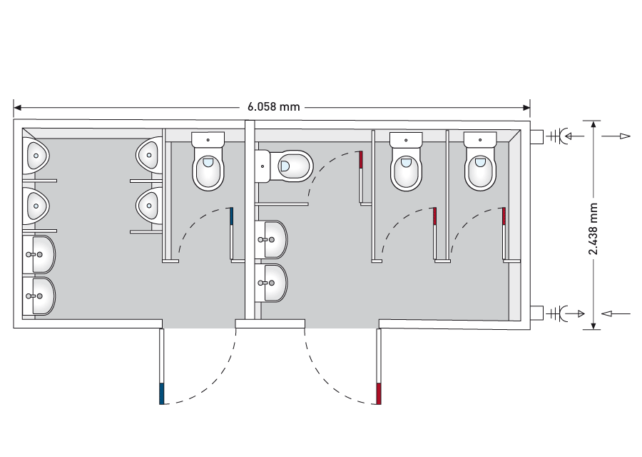
Disposition fonctionnelle.
Incroyable ce que vous retrouvez dans le bungalow sanitaire pour dames et hommes. La disposition parfaite permet d’utiliser ce bungalow à sept personnes à la fois.

Ici l’espace est utilisé efficacement. Votre avantage : un rapport prix-qualité favorable. Les robinets économiseurs d’eau ménagent non seulement votre budget, mais aussi l’environnement.

À prendre en considération

  • Réservoir d’eaux usées de 10 m³
  • Réservoir pour eau fraiche
  • Pompe de relevage pour matières fécales
  • Longueur: 6.058 mm
  • Largeur: 2.438 mm
  • Hauteur: 2.800 mm
  • Courant: 400 V / 32 A
  • Eau fraiche: raccords GEKA 3/4”
  • Eau usée: tuyaux HT - NW 100
  • Distributeur de savon
  • Distributeur de serviettes en papier
* Sous réserve de modifications techniques
  • Dames :
  • 3 toilettes
  • 1 lavabo
  • 1 radiateur de 2 kW
  • Messieurs :
  • 2 toilettes
  • 2 urinoirs
  • 1 lavabo
  • 1 radiateur de 2 kW
* L'équipement peut varier

Télécharger

Télécharger

Comment cela fonctionne

Informations sur la commande et les produits

CONSEIL ET PLANIFICATION

Vous avez des questions sur nos services ou nos produits ? Nos experts expérimentés de TOI TOI & DIXI analyseront vos besoins, élaboreront la solution adéquate et, si vous le souhaitez, géreront l'ensemble de la coordination du projet, y compris les inspections du site auprès des autorités concernées et l'obtention de tous les permis. Contactez-nous, nous serons heureux de vous conseiller sur toutes les questions concernant :

  • planification des besoins
  • systèmes de guidage
  • livraison et collecte
  • permis officiels

NOUS LIVRONS ET COLLECTONS

Nous livrons nos conteneurs à l'endroit souhaité, les positionnons selon les besoins et les récupérons. En collaboration avec nos partenaires logistiques, nous fournissons un service fiable.

TRAVAUX DE MONTAGE ET DE RACCORDEMENT

Un service complet pour votre projet: TOI TOI & DIXI prend en charge toutes les étapes nécessaires, en fonction de vos besoins - du montage professionnel au démontage, en passant par les travaux de raccordement à l'eau, aux égouts et à l'électricité. Si nécessaire, nous nous occupons également de la sous-structure des conteneurs, proposons des services de réparation et réalisons des mesures d'extension, de transformation ou d'aménagement intérieur des conteneurs.

NETTOYAGE

Hygiène et désinfection testées : Nos conteneurs sont désinfectés de manière hygiénique et testés avant et après utilisation. Notre personnel spécialisé et formé effectue ces nettoyages selon des spécifications fermement définies. Nous vous offrons le service dont vous avez besoin sur place.

VOTRE CAS D'UTILISATION

Nos solutions pour votre besoin

voir nos offres de services

TOI TOI & DIXI monde des produits

Comment pouvons-nous vous aider?

Questions et réponses sur nos produits, services et locations en ligne

QUESTIONS GÉNÉRALES

QUESTION SUR LES PRODUITS

Contactez nous! 02 - 377 12 88 Offre Votre offre Agences Nos agences