Ligne Basic Bungalow Toilettes D/H Cube Chantier

10/005

Dames / Hommes WC Urinoir Évier Savon Chauffage Lumière Serviette en papier Transport Tension
  • 2 toilettes
  • 2 urinoirs
  • 4 grands éviers avec miroirs
Description du produit
Nos services
  • Nous consultons
  • Nous livrons
  • Nous nettoyons
  • Nous disposons
  • Nous recueillons

Description du produit

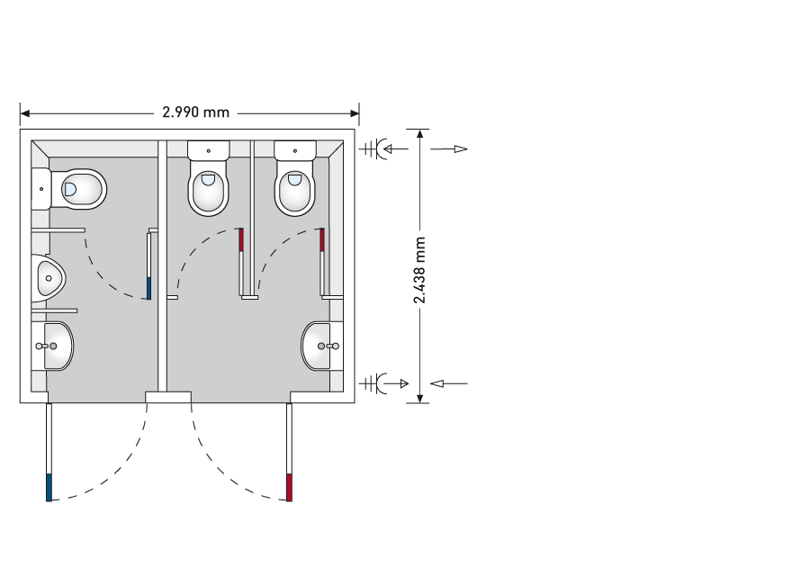
Dans ce bungalow- ci vous recevez le tout sur une espace minime : le bungalow Cube qui est très compacte vous donne des compartiments dames et hommes séparés, sur seulement 7m²  il donne place à 4 personnes au même temps.

Ce bungalow ne demande que peu de place pour le placement mais donne quand même assez de place aux utilisateurs. Il n’ épargne pas que de la place mais aussi des coûts. D’ ailleurs le bungalow WC «Cube» Dames/Hommes est équipé avec tous ce qui est besoin pour une visite sanitaire assez agréable, des distributeurs de savon et serviettes jusqu’ aux chauffages pour les périodes froides. Cette modèle la plus petite de la série Basic Line est aussi très facile à maintenir.

À prendre en considération

  • Fosse septique 5 m³
  • Cuve d’ eaux 3 m³
  • Broyeur

Modifications techniques sont réservées. 

  • Longueur: 2.438mm
  • Largeur: 2.990mm
  • Hauteur: 2.850mm
  • Electricité: 400V / 32A
  • Eau fraîche: raccord ¾”
  • Eaux usées: tuyau 110mm
* Sous réserve de modifications techniques
  • Mesdames :
  • 1 toilette
  • 1 lavabo
  • Chaudière 20L
  • Distributeurs de savon
  • Distributeurs serviettes
  • Chauffages électriques 2 kW
  • Messieurs :
  • 1 toilette avec lavabo
  • 2 urinoirs
  • 3 grands éviers avec miroirs
  • Distributeurs de savon
  • Distributeurs serviettes
  • Chauffages électriques 2 kW
* L'équipement peut varier

Télécharger

Comment cela fonctionne

Informations sur la commande et les produits

CONSEIL ET PLANIFICATION

Vous avez des questions sur nos services ou nos produits ? Nos experts expérimentés de TOI TOI & DIXI analyseront vos besoins, élaboreront la solution adéquate et, si vous le souhaitez, géreront l'ensemble de la coordination du projet, y compris les inspections du site auprès des autorités concernées et l'obtention de tous les permis. Contactez-nous, nous serons heureux de vous conseiller sur toutes les questions concernant :

  • planification des besoins
  • systèmes de guidage
  • livraison et collecte
  • permis officiels

NOUS LIVRONS ET COLLECTONS

Nous livrons nos conteneurs à l'endroit souhaité, les positionnons selon les besoins et les récupérons. En collaboration avec nos partenaires logistiques, nous fournissons un service fiable.

TRAVAUX DE MONTAGE ET DE RACCORDEMENT

Un service complet pour votre projet: TOI TOI & DIXI prend en charge toutes les étapes nécessaires, en fonction de vos besoins - du montage professionnel au démontage, en passant par les travaux de raccordement à l'eau, aux égouts et à l'électricité. Si nécessaire, nous nous occupons également de la sous-structure des conteneurs, proposons des services de réparation et réalisons des mesures d'extension, de transformation ou d'aménagement intérieur des conteneurs.

NETTOYAGE

Hygiène et désinfection testées : Nos conteneurs sont désinfectés de manière hygiénique et testés avant et après utilisation. Notre personnel spécialisé et formé effectue ces nettoyages selon des spécifications fermement définies. Nous vous offrons le service dont vous avez besoin sur place.

VOTRE CAS D'UTILISATION

Nos solutions pour votre besoin

voir nos offres de services

TOI TOI & DIXI monde des produits

Comment pouvons-nous vous aider?

Questions et réponses sur nos produits, services et locations en ligne

QUESTIONS GÉNÉRALES

QUESTION SUR LES PRODUITS

Contactez nous! 02 - 377 12 88 Offre Votre offre Agences Nos agences