Basic Line WC-Container D/H "Dobbelsteen"

10/006

10ft sanitaire container

  • 3 toiletten
  • 1 urinoir
  • 2 wastafels
Product omschrijving
Onze diensten
  • Wij adviseren
  • Wij leveren
  • Wij maken schoon
  • Wij beschikken over
  • WIJ HALEN OP

Product omschrijving

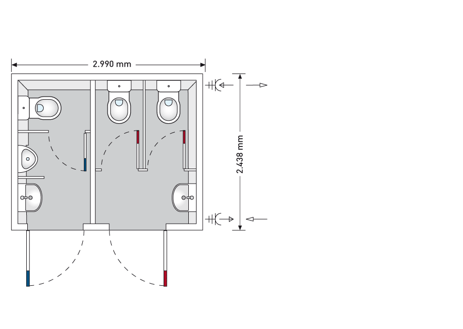
In deze container krijgt u plaatsbesparing op z’n best: de compacte Dobbelsteencontainer met gescheiden dames-  en herencompartiment, biedt op slechts 7 m² plaats aan 4 personen tegelijkertijd.

Er is slechts weinig ruimte nodig om deze unit op te stellen, maar toch geeft hij genoeg plaats aan de gebruikers. Deze "Dobbelsteen" containter zorgt niet enkel voor plaatsbesparing, maar ook voor een gunstige oplossing op het vlak van kosten. Bovendien biedt de “Dobbelsteen” WC- container Dames/Heren alles wat nodig is om het toilet-bezoek aangenaam te maken, van zeep- en papieren handdoekdispensers tot verwarming voor tijdens de koude periodes. Ook dit kleinste model uit de Basic Line- serie is makkelijk proper en net te houden.

Aandachtspunten

  • Fecaliëntank 5 m³
  • Verswatertank 3 m³
  • Vergruizer

Technische veranderingen zijn voorbehouden. 

  • Lengte: 2.438mm
  • Breedte: 2.990mm
  • Hoogte: 2.850mm
  • Stroom: 400V / 32A
  • Vers water: ¾” GEKA-koppeling
  • Afvalwater: HT-buis NW 100
* Onder voorbehoud van technische wijzigingen
  • Dames:
  • 2 toiletten
  • 1 wastafel
  • Zeepdispenser
  • Papieren handdoekdispenser
  • 1 verwarming 2kW
  • Heren:
  • 1 toilet
  • 1 urinoir
  • 1 wastafel
  • Zeepdispenser
  • Papieren handdoekdispenser
  • 1 verwarming 2kW

*Technische veranderingen  zijn voorbehouden.

* Interieur kan variëren

Download

Hoe het werkt

Informatie over het bestelproces en onze producten

ADVIES EN PLANNING

Hebt u vragen over onze diensten of onze producten? Onze ervaren TOI TOI & DIXI-experts zullen uw behoeften analyseren, de juiste oplossing uitwerken en, indien u dat wenst, de volledige projectcoördinatie beheren, met inbegrip van werfinspecties bij de betrokken autoriteiten en het verkrijgen van alle vergunningen. Neem contact met ons op, wij zullen u graag adviseren over alle vragen met betrekking tot:

  • behoefteplanning
  • geleidingssystemen
  • levering en ophaling
  • officiële vergunningen

WIJ LEVEREN EN HALEN OP

Wij leveren onze containers op de gewenste locatie, plaatsen ze daar volgens de eisen en halen ze ook weer op. Samen met onze logistieke partners zorgen wij voor een betrouwbare service.

MONTAGE- EN VERBINDINGSWERKZAAMHEDEN

Totale service voor uw project: TOI TOI & DIXI zorgt voor alle noodzakelijke werkzaamheden, afhankelijk van uw behoeften - van professionele montage tot aansluitingswerkzaamheden voor water, riolering en elektriciteit tot demontage. Indien nodig nemen wij ook de onderconstructie van de containers over, bieden wij reparatiediensten aan en nemen wij maatregelen voor de uitbreiding, verbouwing of binneninrichting van de containers.

SCHOONMAKEN

Geteste hygiëne & desinfectie: Onze containers worden voor en na gebruik hygiënisch gedesinfecteerd en getest. Ons opgeleid gespecialiseerd personeel voert deze reinigingen uit volgens vastgelegde specificaties. Wij bieden u de service die u ter plaatse nodig heeft.

Uw gebruiksbehoeftes

Onze oplossingen voor uw behoeftes

zie ons serviceaanbod

TOI TOI & DIXI product wereld

Hoe kunnen we u helpen?

Vragen en antwoorden over onze producten, diensten en online verhuur

ALGEMENE VRAGEN

VRAGEN OVER PRODUCTEN

Bel ons 02 - 377 12 88 Offerte Uw Offerte Vestigingen Onze vestigingen