Zwart-Witcontainer

10/020

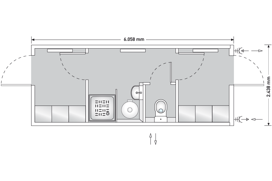
Sanitaire container

  • 1 douche
  • 1 toilet
  • 1 wastafel
  • 2 kleedruimtes
Product omschrijving
Onze diensten
  • Wij adviseren
  • Wij leveren
  • Wij maken schoon
  • Wij beschikken over
  • WIJ HALEN OP

Product omschrijving

Hygiëne op de eerste plaats.
Optimale bescherming bij het omgaan met gevaarlijke stoffen. De geïntegreerde hygiënesluis zorgt voor een duidelijke scheiding tussen de verontreinigde en de schone zones. Ze beschermt tegen gezondheidsrisico’s en zorgt ervoor dat problematische materialen in de daarvoor voorziene zones blijven.

Speciale zones met hoogste aandacht voor hygiëne, waar hoog-risicomateriaal verzameld en verwijderd kan worden. Daarvoor werden deze containers speciaal ontworpen. Het principe is eenvoudig: zwart is de zone waar alles binnenkomt en wit is de zone waaruit alles verwijderd moet worden.

In de „zwarte zone“ wordt gecontamineerde werkkledij verzameld. Via de douchesluis met het toilettengedeelte komt men dan in de „witte zone“. Deze werkwijze garandeert een grondige decontaminatie.

Aandachtspunten

  • Vuilwatertank van 10m³
  • Watertank voor vers water
  • Vergruizer / pomp
  • Lengte: 6.058 mm
  • Breedte: 2.438 mm
  • Hoogte: 2.850 mm
  • Stroom: 400 V / 32 A
  • Vers water: 3/4 GEKA-koppelstuk
  • Vuil water: 1 x afvoerbuis 110mm
* Onder voorbehoud van technische wijzigingen
  • 1 douche
  • 1 toilet
  • 1 wastafel
  • Zeepdispenser
  • Houder voor papieren handdoeken
  • 1 warmwaterboiler voor 50 liter
  • 3 radiators van 2KW
* Interieur kan variëren

Download

Hoe het werkt

Informatie over het bestelproces en onze producten

ADVIES EN PLANNING

Hebt u vragen over onze diensten of onze producten? Onze ervaren TOI TOI & DIXI-experts zullen uw behoeften analyseren, de juiste oplossing uitwerken en, indien u dat wenst, de volledige projectcoördinatie beheren, met inbegrip van werfinspecties bij de betrokken autoriteiten en het verkrijgen van alle vergunningen. Neem contact met ons op, wij zullen u graag adviseren over alle vragen met betrekking tot:

  • behoefteplanning
  • geleidingssystemen
  • levering en ophaling
  • officiële vergunningen

WIJ LEVEREN EN HALEN OP

Wij leveren onze containers op de gewenste locatie, plaatsen ze daar volgens de eisen en halen ze ook weer op. Samen met onze logistieke partners zorgen wij voor een betrouwbare service.

MONTAGE- EN VERBINDINGSWERKZAAMHEDEN

Totale service voor uw project: TOI TOI & DIXI zorgt voor alle noodzakelijke werkzaamheden, afhankelijk van uw behoeften - van professionele montage tot aansluitingswerkzaamheden voor water, riolering en elektriciteit tot demontage. Indien nodig nemen wij ook de onderconstructie van de containers over, bieden wij reparatiediensten aan en nemen wij maatregelen voor de uitbreiding, verbouwing of binneninrichting van de containers.

SCHOONMAKEN

Geteste hygiëne & desinfectie: Onze containers worden voor en na gebruik hygiënisch gedesinfecteerd en getest. Ons opgeleid gespecialiseerd personeel voert deze reinigingen uit volgens vastgelegde specificaties. Wij bieden u de service die u ter plaatse nodig heeft.

INDIVIDUEEL UITRUSTINGSCONCEPT

De mobiele ruimtecontainer past zich aan uw behoeften aan: Afhankelijk van het gebruiksdoel creëren en realiseren wij graag uw individuele inrichtingsconcept. Het TOI TOI & DIXI inrichtingsprogramma biedt voor elke behoefte de juiste oplossing.

Uw gebruiksbehoeftes

Onze oplossingen voor uw behoeftes

zie ons serviceaanbod

TOI TOI & DIXI product wereld

Hoe kunnen we u helpen?

Vragen en antwoorden over onze producten, diensten en online verhuur

ALGEMENE VRAGEN

VRAGEN OVER PRODUCTEN

Bel ons 02 - 377 12 88 Offerte Uw Offerte Vestigingen Onze vestigingen